ID CP2875111

Proprietate in vila interbelica, pret bun - Pasajul Unirii, 157 mp

ID CP2875111

268,600 € (negociabil)

Casă / Vilă cu 6 camere de vânzare
P-ta Unirii, Bucuresti
140 mp
1938

Areea Imobiliare va invita sa descoperiti la Pasajul Unirii, in inelul ULTRACENTRAL, o proprietate interesanta, intr-un cartier linistit si civilizat, o incursiune în eleganta Bucureștiului de altadata.

Va oferim spre vanzare PARTERUL INTREG + DEPENDINTE al unei vile interbelice S+P+1E+M .

ATENTIE: in paralel se vinde si etajul, astfel incat un cumparator interesat poate achizitiona INTREGUL IMOBIL .

Aceasta vila interbelica, construita in stil eclectic, reprezinta o oportunitate pentru cei care cauta un spatiu rezidential distins si generos, dar si un sediu profesional reprezentativ .

Imobilul necesita renovare, in interior si la fatada, de aici si accesibilitatea pretului.

Construit in 1938, are plansee de beton, subsolul si podul sunt uscate (podul a fost reparat).

Nu s-au facut modificari la structura cladirii (de exemplu, reconfigurari de spatiu). Imobilul nu este listat cu urgenta sau risc.

Vila a fost proiectata si construita pentru o bogata familie de negustori, combinand avantaje practice si bine gandite, cu arhitectura frumoasa, caracteristica perioadei. Dupa renovare, un viitor proprietar ar putea aprecia :

- camerele numeroase pe fiecare nivel = locuinta propriu-zisa + fostele dependinte de serviciu ;

- cele doua intrari separate pentru parter si etaj + usa pentru aprovizionare, la parter ;

- peretii cu inaltime de 3,70 m, oferind senzatia de larga respiratie + ferestrele mari, proprietatea fiind luminoasa indiferent de vreme ;

- parchetul din lemn de stejar, usile de epoca si sobele elegante, bine conservate, formand un ambient placut .

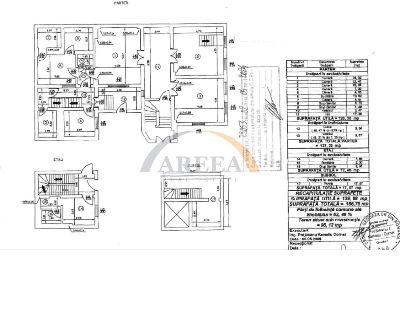
Configurare parter:

- locuinta propriu-zisa, in suprafata utila de 127,3 mp, formata din 5 camere, 2 bai, bucatarie si debara, dupa cum urmeaza: living - 23,3 mp; dormitor - 22,4 mp; dormitor - 20,1 mp; camera - 7,2 mp; camera - 4,6 mp; bucatarie - 10,5 mp ;

- dependinta in suprafata utila de 12,5 mp, astfel: camera - 7,8 mp, bucatarie - 2,3 mp, grup sanitar - 2,35 mp ;

- incapere subsol in exclusivitate: 17,1 mp ;

- partea de culoar si vestibul in indiviziune : 9,4 mp .

Curtea, subsolul si podul sunt in indiviziune.

Actele sunt pregatite, iar cadastrul conform.

Este o proprietate care merita investitia, avand avantajul dublu al LOCATIEI si al proiectului INTELIGENT .

Haideti sa readucem valoare acestui imobil frumos, practic si bine pozitionat! Va astept cu drag la vizionare. Detalii suplimentare si programari de luni pana duminica - raspund la tel 0746 985 924.

Echipa Areea Imobiliare, mereu cu cele mai bune proprietati din piata !

Citește mai mult

  • Număr camere
    6
  • Dormitoare
    5
  • Număr bucătării
    2
  • Număr băi
    3
  • Geam la baie
    Da
  • Număr locuri parcare
    1
  • Disponibilitate
    Imediat
  • Tip casă
    Individual
  • Stare interior
    Necesită renovare
  • Suprafață utilă
    140 mp
  • Suprafață construită
    157 mp
  • Suprafață teren
    215 mp
  • Acoperiș
    Tablă
  • An construcție
    1938
  • Tip construcție
    Cărămidă
  • Număr subsoluri
    1
  • Are pod
    Da

Facilități

Apă
Apometre
Canalizare
Contor căldură
Contor electric
Contor gaz
Curent
Debara
Gaz
Iluminat stradal
Internet
Mijloace de transport în comun
Parcare deschisă
Parchet
Pivniță
Străzi asfaltate
Telefon
Ușă intrare metal
Uscătorie
Uși interior lemn
Vedere spre oraș
Mihaela Cristescu
Consultant imobiliar

0746985924


Solicită chiar acum o vizionare
Telefon
Sună acum Solicită vizionare
Necesare:

Site-ul nu poate funcționa corect fără aceste cookie-uri. Vezi cookie-urile

Statistică:

Strângem statistici anonime despre voi, vizitatorii unici, pentru a vă îmbunătăți experiența dumneavoastră. Vezi cookie-urile

Marketing:

Pentru a ne promova mai eficient serviciile noastre, folosim cookies pentru a vă identifica și a vă oferi proprietăți și servicii personalizate. Vezi cookie-urile

Acest site folosește cookies, află detalii. Alege ce tipuri de cookies dorești să permitem: