ID CP2707273

OPORTUNITATE RARA - imobil central, multifunctional, curte PROPRIE

ID CP2707273

394,800 € (negociabil)

Casă / Vilă cu 10 camere de vânzare
Dacia, Bucuresti
374 mp
1925

Areea Imobiliare are placerea sa va prezinte spre vanzare un ansamblu de cladiri, imbinate in mod armonios.

Rezulta un imobil cu potential deosebit, avand spatii generoase care alterneaza cu incaperi tip apartamen.

Curte libera spatioasa, cu multiple posibilitati de parcare si amenajare pentru activitati in aer liber.

Odata finisat, ansamblul poate deveni locuinta de vis din inima Bucurestiului. Totodata, este ideal pentru sediu de birouri, gradinita sau scoala privata, clinica sau restaurant cu hotel.

Adresa este pe str Viitorului, in apropiere de Bd Dacia.

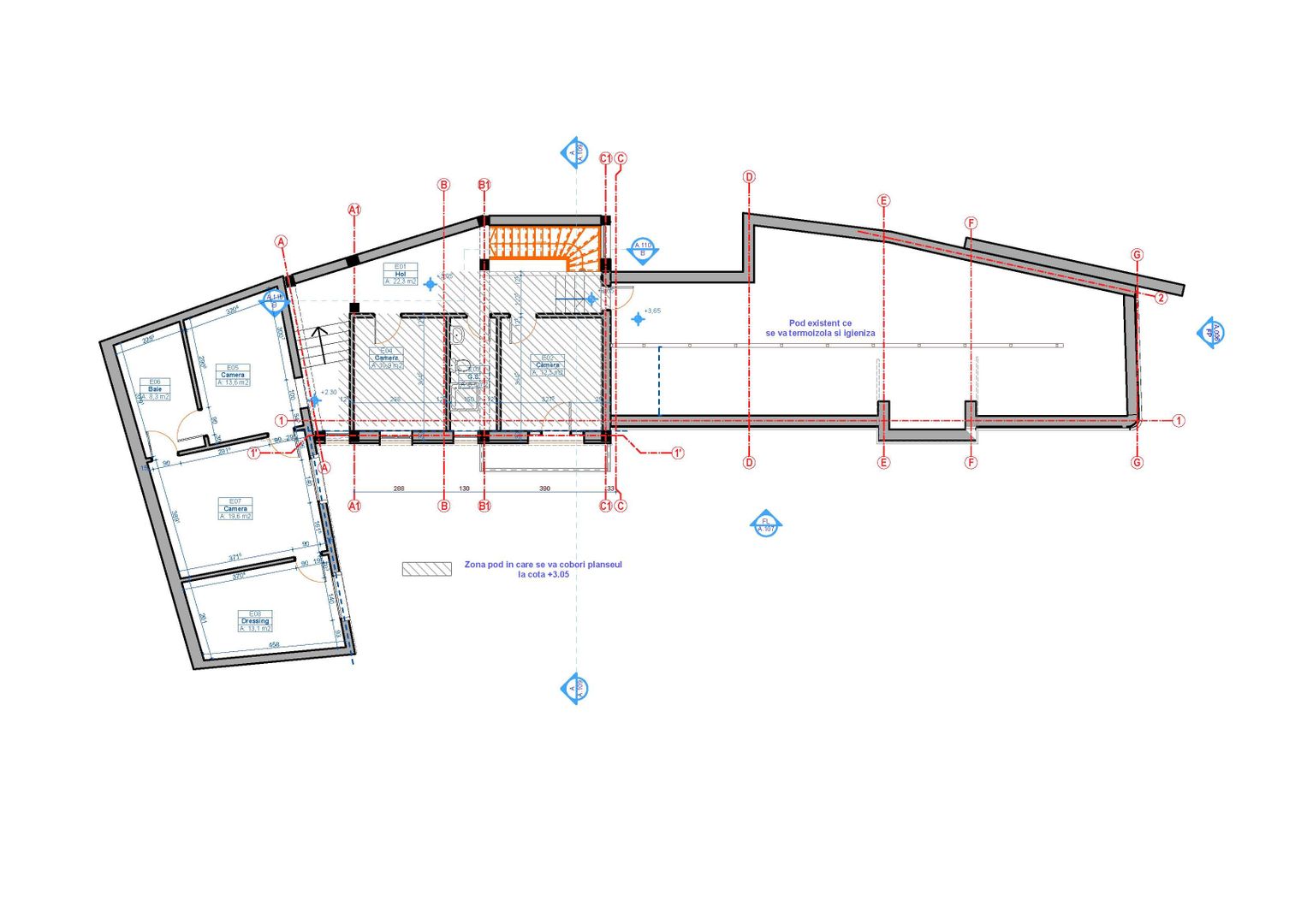
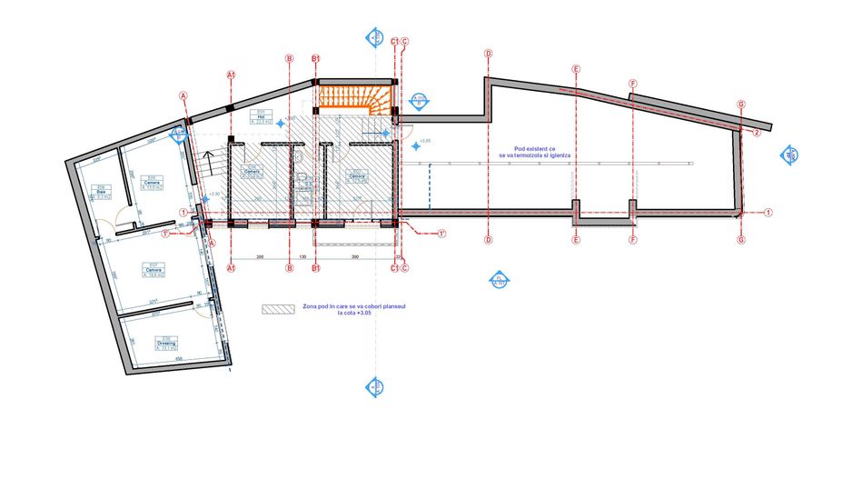
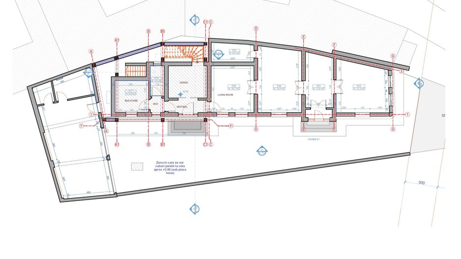
Sunt 3 corpuri de cladire legate, sub aceeasi viziune unitara (vezi fotografiile si schita), dupa cum urmeaza:

Corpul 1

- P+M

- dateaza din perioada interbelica, anul 1925, structura caramida portanta

- decopertat la caramida, curat, se observa structura intacta

- in proprietate sunt pastrate usile si tocurile de lemn originale, acestea necesitand curatare si reabilitare

Corpul 2

- P+E

- dateaza din 1998

- structura beton si caramida

- parterul este ocupat de un garaj cu 3 locuri (practic incaperile de locuit se afla deasupra)

- este decopertat la rosu, pregatit pentru finisare

Corpul 3

- P+M

- ridicat in 2014

- are scopul de a integra cele doua corpuri de casa

- asigura trecerea si fluiditatea in intregul ansamblu

- subsol de 15 mp

- parterul este in sistem open space, iar mansarda este proiectata pentru a fi locuibila

Terenul

- forma trapezoidala, cu deschidere pentru auto, aceasta se dubleaza in spate

- in suprafata de 420 mp, ofera o curte libera de 260 mp.

- gard inalt, betonat,ce protejeaza vizual si fonic pe toata lungimea curtii

Vecini linistiti, civilizati, curatenie.

De mai multi ani, in zona are loc un proces de intinerire si refacere a farmecului interbelic.

Str Viitorului se afla in imeidata apropiere de Bd Dacia / Piata Gemeni, cu acces rapid la Piata Romana. Totodata, asigura conexiunea, in celalalt capat, cu Lizeanu / Sos Stefan cel Mare.

Va asteptam cu drag la vizionare, MERITA DIN PLIN ! Detalii si programari, de luni pana duminica.

Tel 0746 985 924 si 0759 111 666.

Areea Imobiliare, mereu cu cele mai bune proprietati din piata !

Citește mai mult

  • Număr camere
    10
  • Geam la baie
    Da
  • Număr garaje
    1
  • Număr locuri parcare
    3
  • Disponibilitate
    Imediat
  • Tip casă
    Individual
  • Stare interior
    Necesită renovare
  • Suprafață utilă
    374 mp
  • Suprafață construită
    420 mp
  • Suprafață construită la sol (Amprentă)
    160.0 mp
  • Suprafață teren
    420 mp
  • Suprafață curte liberă
    260 mp
  • Deschidere
    10 m
  • Acoperiș
    Tablă
  • Stadiu construcție
    La roșu
  • An construcție
    1925
  • Construcție nouă
    Da
  • La revânzare
    Da
  • Tip construcție
    Cărămidă
  • Număr etaje clădire
    1
  • Număr subsoluri
    1
  • Are mansardă
    Da

Facilități

Apă
Canalizare
Curent
Garaj
Gaz
Iluminat stradal
Mijloace de transport în comun
Parcare deschisă
Străzi asfaltate
Vedere spre oraș
Marian Serban
Manager

0759111666


Solicită chiar acum o vizionare
Telefon
Sună acum Solicită vizionare
Necesare:

Site-ul nu poate funcționa corect fără aceste cookie-uri. Vezi cookie-urile

Statistică:

Strângem statistici anonime despre voi, vizitatorii unici, pentru a vă îmbunătăți experiența dumneavoastră. Vezi cookie-urile

Marketing:

Pentru a ne promova mai eficient serviciile noastre, folosim cookies pentru a vă identifica și a vă oferi proprietăți și servicii personalizate. Vezi cookie-urile

Acest site folosește cookies, află detalii. Alege ce tipuri de cookies dorești să permitem: